Оказываем услуги по изготовлению проектов разбревновки в программе трехмерного моделирования с составлением подробной документации. На этот проект сруба дома имеется вся необходимая документация для изготовления и монтажа, включая планы и развертки стен сруба, карты раскроя бревен и деревянных элементов сруба, спецификации стеновых элементов сруба. Изготовим и смонтируем комплект сруба на Вашем участке.

Вы можете заказать комплект документации для любого сруба дома, направив исходную информацию для расчета Вашего сруба по факсу или электронной почте.
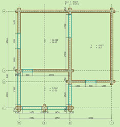
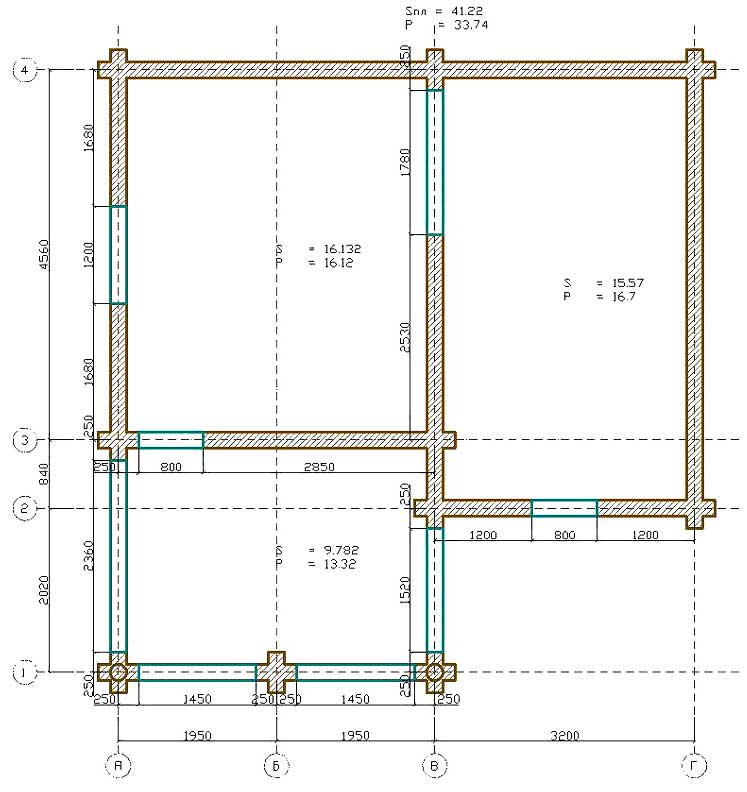
План первого этажа сруба
Назад на проекты срубов