Главная | Все проекты срубов деревянных домов | Деревянный сруб дома: ПРОЕКТ - 002

Деревянный сруб дома: ПРОЕКТ - 002

 
 
 
 
 
 
 
 
 

Оказываем услуги по изготовлению проектов разбревновки в программе трехмерного моделирования с составлением подробной документации. На этот проект сруба дома имеется вся необходимая документация для изготовления и монтажа, включая планы и развертки стен сруба, карты раскроя бревен и деревянных элементов сруба, спецификации стеновых элементов сруба. Изготовим и смонтируем комплект сруба на Вашем участке.

 

Сруб деревянного дома. Общий вид деревянного сруба дома. Проект деревянного сруба

Вы можете заказать комплект документации для любого сруба дома, направив исходную информацию для расчета Вашего сруба по факсу или электронной почте.

 

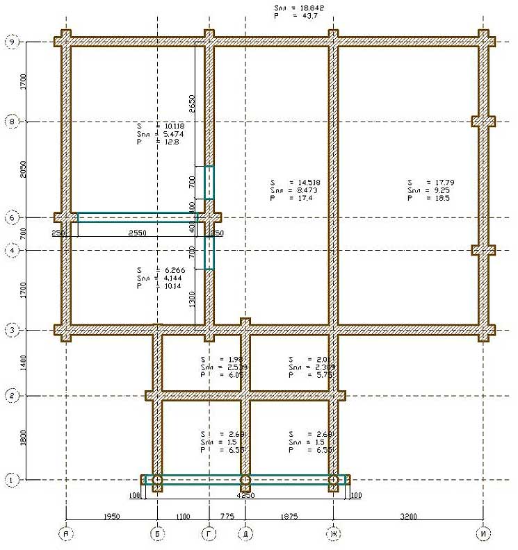
План первого этажа сруба

Первый этаж сруба. План первого этажа сруба

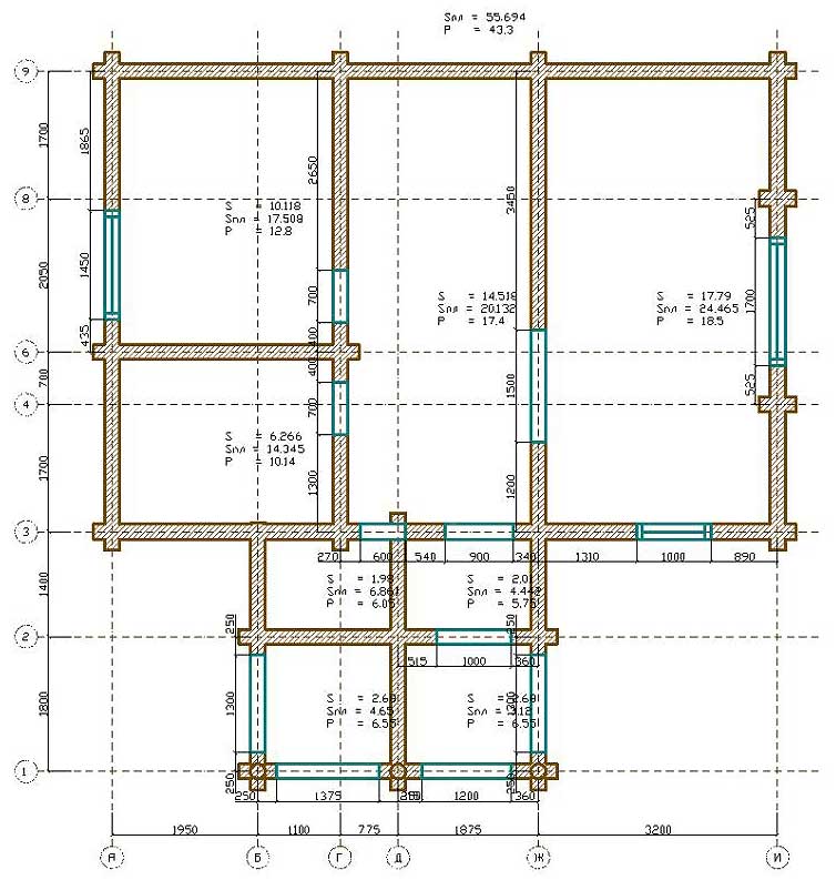
План второго этажа сруба

План второго этажа деревянного сруба

Назад на проекты срубов

]]>
]]>