Это деревянное строение соответствует всем требованиям комфорта и уюта и пригодно как для летнего отдыха, так и для постоянного круглогодичного проживания. Планировка сруба сбалансирована в сторону максимального увеличения полезной площади жилых помещений коттеджа. Это достигается за счет вынесения вспомогательных помещений первого этажа в отдельную группу.
Общая площадь сруба составляет 141,1 м2, из них жилая площадь – 108,2 м2. В доме можно разместить практически все, что нужно современному требовательному человеку для создания необходимого уровня комфорта – камин, дополнительный санузел на втором этаже, сауну, хозяйственные помещения. И это несмотря на отсутствие подвальных помещений, которые существенно увеличивают стоимость строительства.

Цена комплекта для сборки сруба из оцилиндрованного бревна диаметром 220 мм и его монтажа на готовом фундаменте заказчика составляет 1 133 386 рублей (по состоянию на 01 февраля 2010 года).
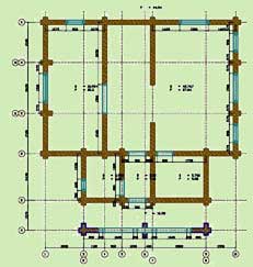
План первого этажа сруба
План второго этажа сруба