Один из наиболее популярных проектов срубов. Отличается привлекательным внешним видом, удобством и практичностью. Внутренняя планировка сруба позволяет оптимально использовать пространство, сохранить тепло и функциональность. Расположенная по центру печь или камин быстро обогреет все внутренние помещения. Легкость конструкции придает срубу аккуратность. Но если с виду сруб кажется небольшим, то внутри достаточно просторно.
Стеновой материал сруба дома - оцилиндрованное или окоренное бревно, поэтому дополнительной отделки стен не требуется ни внутри ни снаружи. Сруб устанавливается на сборный железобетонный фундамент. Кровля мансардного типа позволяет, при желании, установить на крыше дополнительные окна. Рубленые фронтоны придают срубу основательность, и являются гарантией сохранения тепла на втором этаже. Прирубленная веранда эркерного типа увеличивает площадь сруба и эстетическую привлекательность строения. Она может служить не только как большая прихожая, но и как летняя кухня, или чайная беседка.

Цена комплекта для сборки сруба из оцилиндрованного бревна диаметром 220 мм и его монтажа на готовом фундаменте заказчика составляет 618 627 рублей (по состоянию на 01 февраля 2010 года).
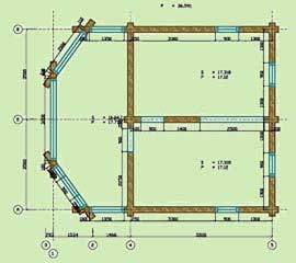
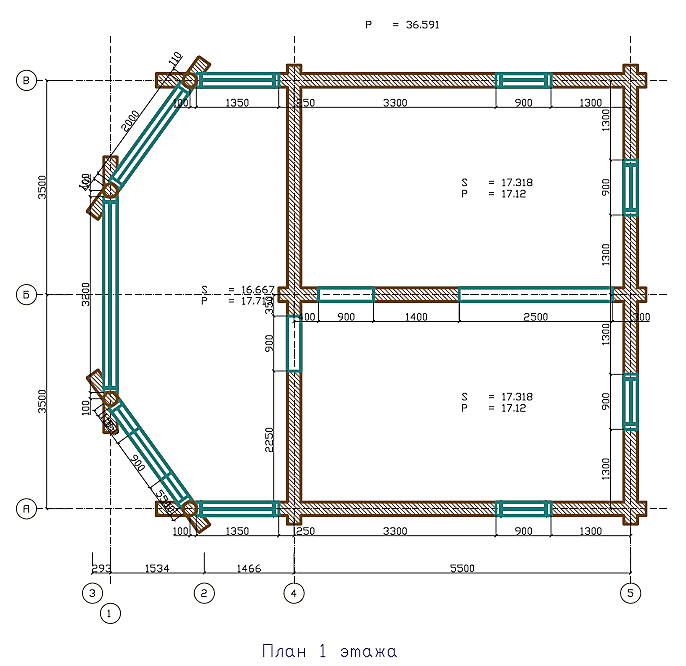
План первого этажа сруба
План второго этажа сруба